Оптическая линейка SINO KA-500 370мм/5мкм
Оптическая линейка sino ka-500 370мм/5мкм
Оптическая линейка SINO KA-500 представляет собой высокоточное измерительное оборудование, которое идеально подходит для использования в промышленных целях. Этот прибор обеспечивает точные и надежные измерения, что делает его незаменимым инструментом для различных отраслей промышленности.
Преимущества:
- Высокая точность измерений
- Долговечность и надежность
- Простота в использовании
- Широкий диапазон измерений
- Высокая скорость измерения
Особенности:
- Длина: 370 мм
- Точность: 5 мкм
- Материал: высококачественная сталь
- Интерфейс: RS-232
- Питание: от батареек или сети
Назначение:
Оптическая линейка SINO KA-500 предназначена для точных измерений длины и ширины деталей, контроля размеров и высоты, а также для проверки параллельности и перпендикулярности поверхностей.
Сферы применения:
- Машиностроение
- Авиационная промышленность
- Автомобильная промышленность
- Медицинское оборудование
- Электроника
Цифровая оптическая линейка SINO KA-500 370мм/5мкм применяется для точного измерения линейных перемещений. Результаты измерений выводятся на монитор с точностью 5мкм. Данные устройства, как правило применяются в измерениях перемещений кареток и столов токарных и фрезерных станков, а также определение перемещений цифровых упоров в отрезных станках и гильотинах.
Технические характеристики sino ka-500 370мм/5мкм
| Характеристика | Значение |
|---|---|
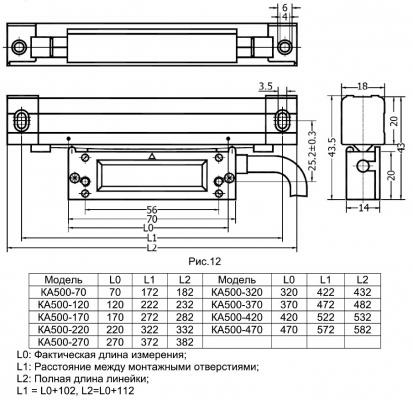
| Рабочая длина (мм) | 370 |
| Сечение (мм) | 18х20 |
| Разрешение (мкм) | 5 мкм (0.5* мкм, 1* мкм) |
| Максимальная скорость | 60 м/мин |
| Цена деления | 0.02 мм (50 штрихов/мм) |
| Референтные метки | 1метка каждые 50 мм |
| Выходной сигнал | TTL(+5В (±5%) 80мА) |
| Коннектор (разъем) | TTL 9-pin |
| Длина кабеля | 3м |
| Рабочая температура | 0~45°C |
| Тип защиты | IP55 |
* - под заказ
Базовая комплектация
- Кабель в металлической оплетке - 3 м.
- Защитный кожух, соответствующие длине линейки.
- Документация по эксплуатации.
Опции
- Комплект крепежных пластиной и уголков.
- Удлинитель кабеля 3 м.
- Удлинитель кабеля 10 м.
- Дискретность измерений - 1 мкм.
- Монтаж УЦИ и оптических линеек на станке Заказчика.




Отзывы к "Оптическая линейка SINO KA-500 370мм/5мкм":
Пока нет отзывов